| Home | Browse RVs | Contact Dream Finders | Sell Your RV | Options |
![]() |
|
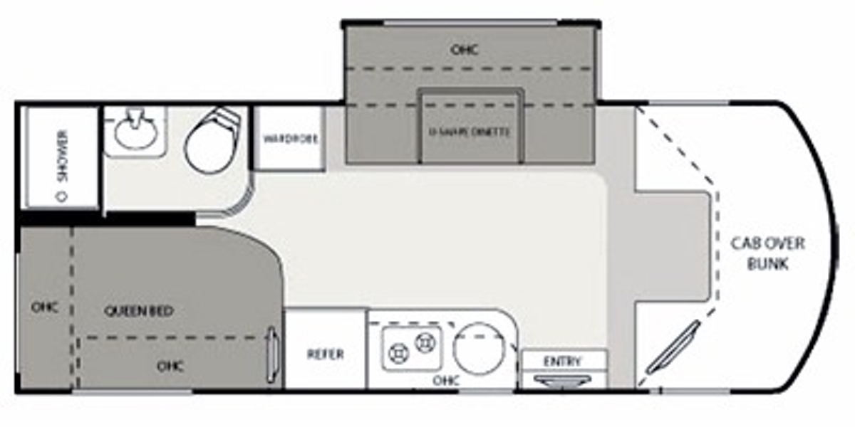
2009 Four Winds
Siesta Sprinter 24SA Mercedes Benz Diesel w/Slide 24.5FT RV HAS SOLD |
![]() |
| Brochure | Super Size Slide Show | Slide Show | Return to Details | Browse RVs |
![]() |
|
|
|
|
|
|
|
|
|
|
![]() |
![]() |
![]() |
| >> Window Sticker / Build Sheet - Specs & Floor Plan << |
![]() |
![]() |
| Super Size Slide Show | Slide Show | Return to Details | Top of Page | Browse RVs |

| Home | Browse RVs | Contact Dream Finders | Sell Your RV | Options |
| Dream Finders RVs For Sale By Owner | Privacy Policy | Help Sell My RV | RV Registration |